Копры проходческие

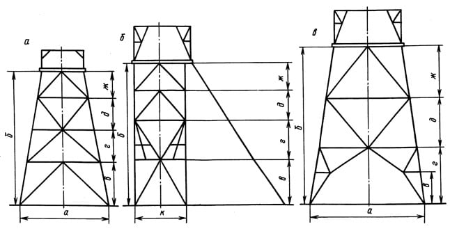
Копры проходческие, конструкции ВНИИОМШСа:
а- I и II типов; б - III и IV типов;
в - "Север-1", "Север-2".

Проходческие копры производства ВНИИОМШС

Копры ВНИИОМШСа предназначены для проходки стволов глубиной до 1600 м, диаметром в свету до 9 м. Все типы копров сборно-разборные, многократного применения.

Копры Север-1 и Север-2 применяют для проходки стволов в условиях Крайнего Севера при температуре наружного воздуха до -65С м скоростью ветра до 40 м/с. Они выполняются из низкогелированной стали, обеспечивающей безопасную работу при температуре до -70С. К месту проведения проходческих работ эти копры доставляют в виде деталей, которые собирают на месте с помощью болтов.

Технические характеристики проходческих копров

КоперIIIIIIIVСевер-1Север-2
Глубина ствола, м 400 800 1100 1400 1200 1600
Диаметр ствола, м56,57989
Размеры шатра, м:
а........................
б........................
в........................
г.........................
д........................
ж........................
к.........................

12
19
6,3
4,5
4,2
4

14
20,5
6,6
5,5
4,4
4

12
22
6,5
6
5,2
4,3
7

14
22,5
6,5
6,5
5
4,5
8

15
22
4,8
8,5
7,5
6

16
26
5,8
10
9
7
Размер подшкивной площадки в плане, м55х5,57х77х7,98х9,566х8 9х9
Общая масса металлоконструкций копра, т
3560809386130
в том числе:
надстройки
подшкивной площадки
шатра
лестниц

2,3
5
23
2,2

3,3
13,5
40
2,6

4
21,2
53
1,3

5
27
59
1,4

3,7
18
63
1,8

5,5
24
98
2,1

Копровый комплекс конструкции Донгипрооргшахтостроя:
1 - фундамент; 2 - нулевая рама; 3 - разгрузочный станок; 4 - шатер копра; 5 - подшкивная площадка; 6 - ограждающие конструкции (обшивка); 7 - проходческий полок на платформе.

Проходческие копры ДонГипроОргШахтоСтрой

Копры конструкции Донгипрооргшахтостроя, по мнению профессионалов, обладают более совершенной конструкцией. Шатер копра, разгрузочный станок, нулевую раму, ограждающие конструкции и подшкивную площадку изготовляют на заводе в виде укрупненных блоков, размеры, которых определяются возможностью перевозки от завода к месту монтажа автомобильным или железнодорожным транспортом. Конструкция копра, благодаря быстроразъемным соединениям и дополнительным устройствам, обеспечивает возможность применения индустриальных методов монтажа.

При использовании этих копров для проведения горизонтальных и наклонных горных выработок подшкивную площадку выполняют двухъярусной. На нижнем ярусе устанавливают шкивы для подвески оборудования при проходке ствола, на верхнем - подъемные шкивы и оборудование, необходимое для работы клетевой подъемной установки. Это обеспечивает переоборудование копра в минимальные сроки для проведения горизонтальных и наклонных горных выработок.

Разгрузочный станок оборудуют секторным затвором. Обшивку копра выполняют в виде навесных металлических панелей из профилированного настила размером 3х6 и 3х12 м, которые могут использоваться многократно. Панели навешивают на металлоконструкции шатра с помощью винтовых зажимов. Копер устанавливают на четырех отдельных фундаментах из инвентарных железобетонных блоков БФ-2.

Технические характеристики проходческих копров

Тип копраКПК-1КПК-2КПК-3
Вместимость бункеров, куб.м 120 120 180
Диаметр ствола, мдо 66-7свыше 7
Глубина ствола, мдо 500до 1000свыше 1000
Проходческий комплекс (забойный) КС-3;
КС-2у;
КСМ-2у
КС-2у;
КС-1М
2КС-2у;
2КС-1М
Вместимость бадей, куб.мдо 33-5свыше 5
Габариты шатровой части, м
у основания
у подшкивной площадки
высота шатра

12х12
6х6
21

14х14
7х7
23,5

16х16
8х8
26
Общая высота, м263236
Общая масса, т100190240
В том числе:
шатра
обшивки
подшкивной площадки
разгрузочного станка
нулевой рамы

30
20
20
25
7

50
40
50
35
10

75
50
62
40
13

ООО "ШахтРесурс"
ИНН 6155059826
КПП 615501001
ОГРН 1106182002740

Music band


+7 (8636) 25-46-84

пн-пт с 8:00 до 18:00

info@sharesurs.ru

Общий email по всем вопросам

© Copyright 2010-2024 ШАХТРЕСУРС - Все права защищены

Яндекс.Метрика